Ihre Privatsphäre ist uns wichtig

Diese Website verwendet Cookies und Targeting Technologien, um Ihnen ein besseres Internet-Erlebnis zu ermöglichen und die Werbung, die Sie sehen, besser an Ihre Bedürfnisse anzupassen. Diese Technologien nutzen wir außerdem, um Ergebnisse zu messen, um zu verstehen, woher unsere Besucher kommen oder um unsere Website weiter zu entwickeln. Mehr Info

 

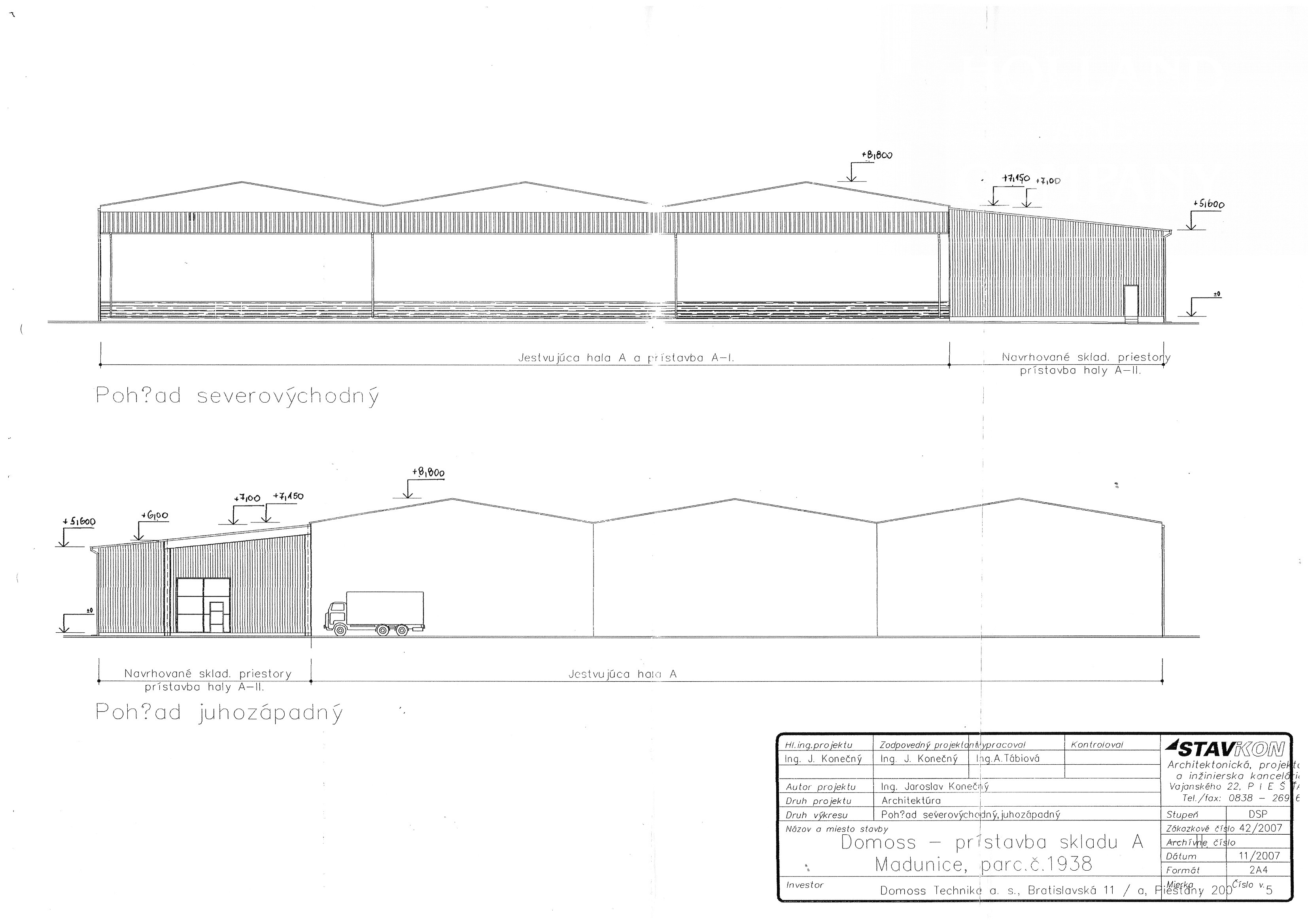
Lagerfläche im Dorf Madunice, 5000 m²

Straße: Kostolánska
Gemeinde: Madunice
Bezirk: Hlohovec
Region: Trnavský kraj
Art: Objekte
Typ: Miete
Objekttyp: Lager
4,50 €/m2

Exposé der Immobilie

Angebot zur Miete – Attraktive Industrieimmobilie in Madunice

Die ideale Lösung für Logistik-, Lager- oder Produktionsbetriebe. Die Immobilie bietet hervorragende Verkehrsanbindung, moderne Parameter und flexible Nutzungsmöglichkeiten.

Grundparameter:

Gesamte Hallenfläche: 5.164 m²

Grundstück: ca. 5.000 m² (befestigte Flächen, Parkplätze, Manipulationsbereiche)

Hallenhöhe: 5,5 m (Anbau) bis 8,8 m (ursprüngliche Halle)

Bodenbelastbarkeit: ca. 3–5 t/m² (auch geeignet für schwere Fördertechnik)

Grundriss: auf Anfrage erhältlich

Verkehrsanbindung:

Autobahnabfahrt D1 Červeník – ca. 7 Minuten

Autobahnabfahrt D1 Piešťany – ca. 15 Minuten

Zufahrt: problemlose Einfahrt und Parkmöglichkeiten für LKW

Aktuelle Nutzung:
Das Objekt wird derzeit für die Lagerung von Elektronik genutzt. Die Hälfte der Halle ist bis Jahresende vermietet. Die Fläche ist bereit, an die Bedürfnisse eines neuen Mieters angepasst zu werden.

Vorteile der Lage und Immobilie:

Strategische Lage zwischen Bratislava und Žilina mit schneller Anbindung an die D1

Großzügige Manipulationsflächen und Parkmöglichkeiten

Flexibler Grundriss – anpassbar an betriebliche Anforderungen

Hohe Bodenbelastbarkeit, geeignet für schwere Technik oder Hochregallagerung

Bei Interesse stelle ich Ihnen gerne detaillierte technische Informationen, Fotos, Grundrisse zur Verfügung und vereinbare eine Besichtigung direkt vor Ort.

Eigenschaften

Status:
aktiv
Eigentum:
privat
Nutzfläche:
5000 m2
Bebaute Fläche:
10000 m2
Grundfläche:
5000 m2
Lagerfläche:
5000 m2
Typ:
teilweise saniert
Gesamtfläche:
10000 m2
Versorgungswirtschaft:
ja
Status:
aktiv
Eigentum:
privat
Nutzfläche:
5000 m2
Bebaute Fläche:
10000 m2
Grundfläche:
5000 m2
Lagerfläche:
5000 m2
Typ:
teilweise saniert
Gesamtfläche:
10000 m2
Versorgungswirtschaft:
ja

Auf der Karte anzeigen